Dự án cải tạo là một căn nhà phố sáu tầng nằm trên lô đất góc với hai mặt tiền. Mặt bằng chéo đặc trưng của lô đất đặt ra nhiều thách thức trong việc tổ chức công năng. Từ đặc điểm đó, phương án thiết kế được phát triển theo hướng giữ cho các không gian sinh hoạt trở nên vuông vắn, sáng và thoáng, đồng thời khai thác chính phần hình học đặc biệt của ngôi nhà để tạo nên một điểm kết nối dài xuyên suốt tầng sinh hoạt chung.
THÔNG TIN DỰ ÁN:
▪️Dự án | Nhà phố chị Huyền – Ái Mộ, Long Biên, Hà Nội
▪️Diện tích | 120m2 x 2 sàn
▪️Phong cách: Japandi
▪️Đơn vị thực hiện | Mộc Xinh

Bối cảnh công trình và yêu cầu không gian
Căn nhà phố nằm tại khu vực Ái Mộ, Long Biên với diện tích khoảng 120m² mỗi tầng và tổng cộng sáu tầng. Gia đình sinh hoạt chủ yếu tại tầng năm và tầng sáu nên phạm vi thiết kế tập trung vào hai tầng này, nơi diễn ra phần lớn các hoạt động hằng ngày.
Mong muốn của gia chủ khá rõ ràng: một không gian sống đơn giản, thoáng đãng và dễ chịu trong sinh hoạt. Thay vì nhiều chi tiết trang trí phức tạp, ngôi nhà cần giữ được cảm giác nhẹ nhàng và mộc mạc để có thể sử dụng lâu dài.
Từ yêu cầu đó, phương án thiết kế được Mộc Xinh định hướng theo phong cách Japandi, với sự tiết chế trong hình thức, bảng màu sáng và cách tổ chức không gian gọn gàng, tập trung vào trải nghiệm sống.


Giải bài toán mặt bằng chéo của căn nhà lô góc
Ngôi nhà nằm ở vị trí lô góc với hai mặt tiền, vì vậy mặt bằng có những cạnh chéo đặc trưng. Dù có nhiều lợi thế hơn về mặt thoáng nhưng dạng hình học này thường khiến gia chủ khó cảm nhận sự vừa vặn, việc bố trí nội thất cũng trở nên khó khăn hơn.
Giải pháp của Mộc Xinh bắt đầu từ việc tổ chức lại mặt bằng để các không gian sinh hoạt chính đạt được tỷ lệ hợp lý và thuận tiện khi sử dụng. Đồng thời biến điểm bất lợi của hình dạng thành điểm nhấn của công trình.

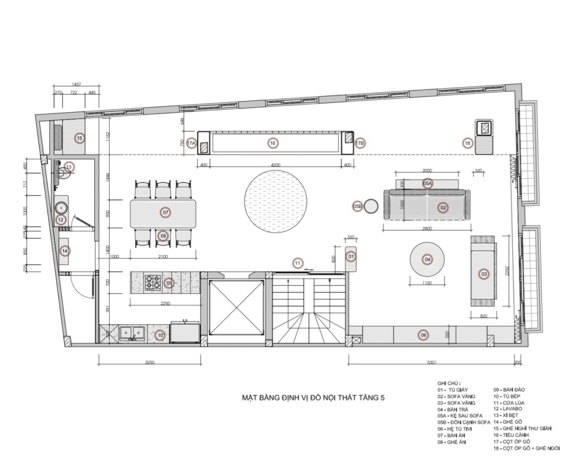
Tầng 5 được sử dụng cho sinh hoạt chung với phòng khách và khu bếp tổ chức theo trục dài của căn nhà, rút ngắn khoảng cách di chuyển. Như thế, trên cùng 1 mặt phẳng các hoạt động như trò chuyện, nấu ăn, ăn uống, thư giãn ngắn của gia chủ được liền mạch thay vì phải di chuyển lên xuống tầng.








Phần hình học chéo của ngôi nhà không bị che giấu mà được khai thác như một yếu tố tạo hình trong thiết kế. Từ đặc điểm đó, một phản dài theo chiều nhà được hình thành và trở thành điểm nhấn của không gian. Chiếc phản đóng vai trò là một băng ghế dài, là nơi gia chủ có thể đọc sách, uống trà hoặc nghỉ ngơi trong những khoảng thời gian thư giãn. Từ phòng khách nhìn ra hay từ khu bếp nhìn sang, chi tiết này luôn hiện diện như một trục kết nối xuyên suốt không gian.




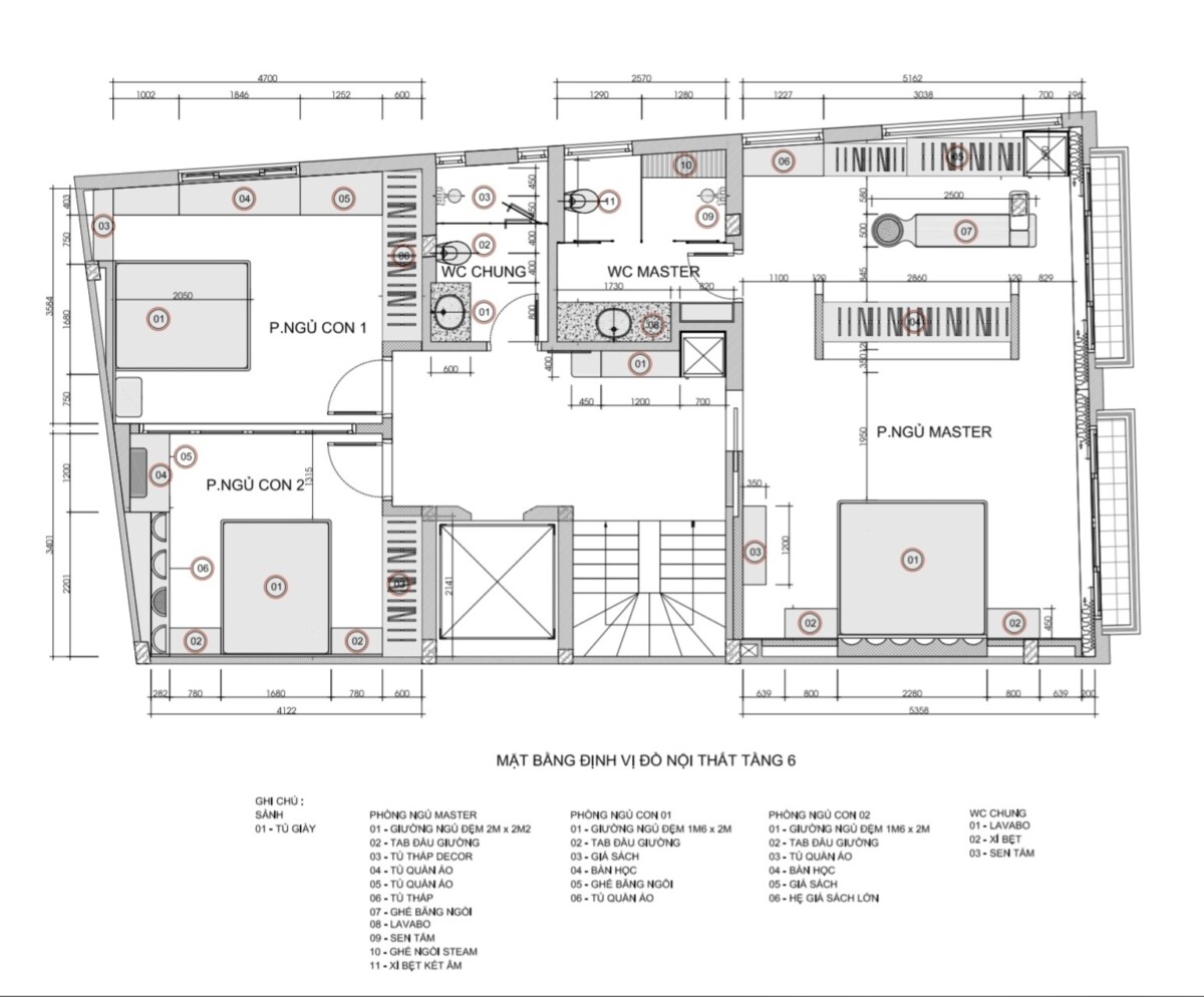
Tầng 6 dành cho các phòng ngủ riêng, bao gồm 1 phòng ngủ Master và hai phòng ngủ phụ cho hai con. Hai phòng ngủ phụ có nhà vệ sinh chung đặt tại hành lang. Với phòng ngủ Master, phần diện tích tại góc chéo được sử dụng cho phòng thay đồ. Kích thước tủ được thiết kế khéo léo để không gian vuông vức.









Ngôn ngữ Japandi với bảng màu sáng và vật liệu với hình thức mộc mạc
Toàn bộ không gian được phát triển theo tinh thần Japandi giao thoa giữa triết lý thiết kế “wabi-sabi” của Nhật Bản và “hygge” của Scandinavia. Tổng thể tạo nên bầu không khí giản dị, gọn gàng và đề cao cảm giác sống nhẹ nhàng.
Vật liệu chủ đạo là gỗ tự nhiên kết hợp với MDF phủ melamine, tạo nên bề mặt ấm áp nhưng vẫn đảm bảo sự ổn định trong sử dụng lâu dài. Với nội thất gỗ, Mộc Xinh tập trung tới việc giữ nguyên hình thức hữu cơ như vân gỗ, các vết bớt tự nhiên trong bề mặt được mài nhẵn và xử lý kỹ lưỡng.


Bảng màu sáng được lựa chọn để tránh sự nặng nề của vật liệu gỗ. Kết hợp với các khoảng trống không gian được cố ý tạo ra như dãy phản dài xuyên suốt hoặc bức bình phong bằng gạch ô gió tại khu vực trung tâm tầng 5, ánh sáng tự nhiên được hấp thụ tốt hơn, tán xạ tới mọi ngóc ngách không gian. Điều này đặc biệt phù hợp với những tầng cao của nhà phố nơi ánh sáng tự nhiên có thể lan tỏa tốt.




Theo đúng tinh thần của phong cách Japandi, các chi tiết nội thất được tiết chế tối đa. Mộc Xinh đặc biệt chú ý tới độ hoàn thiện của bề mặt và sự chuyển tiếp mượt mà giữa các tường, trần với nội thất, hoặc giữa các loại nội thất đứng cạnh nhau, đảm bảo cho tính đồng bộ và chau chuốt của phong cách này.


Sau cải tạo, cảm giác nặng nề và thiếu kết nối của hiện trạng ban đầu đã được thay bằng không gian nhẹ nhàng và mạch lạc. Nơi sinh hoạt đời thường của gia chủ trở thành một thế giới khác, bay bổng hơn, tiện nghi hơn và có khả năng dung dưỡng tinh thần như gia chủ hằng mong muốn.
Nếu bạn đang tìm kiếm một giải pháp thiết kế cho căn nhà của mình, từ cải tạo nhà phố đến xây dựng không gian sống mới, đội ngũ kiến trúc sư của Mộc Xinh luôn sẵn sàng đồng hành cùng bạn từ giai đoạn ý tưởng đến khi công trình hoàn thiện.
