Cảm giác trọn vẹn khi nhận bàn giao nhà của gia chủ sẽ hoàn toàn phụ thuộc vào toàn bộ quá trình này: kiểm soát chất lượng, xử lý sai lệch và bảo toàn ý đồ không gian đến cấp độ chi tiết. Quản trị thi công là quá trình nhằm kiểm soát khoảng cách giữa thiết kế và thi công, những gia chủ sử dụng cùng lúc hai đơn vị khác nhau sẽ càng thấy rõ sự quan trọng của điều này.


Bản vẽ chưa phải là công trình
Tổng kết từ hàng trăm công trình thực hiện trọn gói, các công trình tham gia sau hoặc song song với các đơn vị khác, Mộc Xinh thấy rằng việc nối liền khoảng cách giữa bản vẽ và thi công thực tế luôn là một quá trình quản trị căng não. Đặc biệt với những công trình có lối kiến trúc phức tạp như sàn vượt nhịp, cắt cúp tạo khoảng mở, sử dụng đường cong, nội thất cá nhân hóa thiết kế riêng, nội thất theo phong cách nước ngoài thì ngay cả những đơn vị thực hiện toàn bộ quá trình thiết kế – thi công, việc quản trị đến cấp độ chi tiết từ thiết kế tới thực tế với mỗi dự án cũng là một thách thức riêng chứ chưa kể đến việc kết hợp với đơn vị khác.

Bản vẽ chưa phải là công trình và gia chủ với chuyện làm nhà hầu hết đều có ít kinh nghiệm, việc lựa chọn đơn vị nào cùng đồng hành và chịu trách nhiệm cuối cùng cũng đã là vấn đề nan giải. Từ sự quan sát nhiều năm và công việc thực tế, Mộc Xinh có thể chia các vấn đề của gia chủ khi làm nhà thành các nhóm như sau:
- Gia chủ đã chọn đơn vị thiết kế – thi công nhưng không hài lòng dù đã chỉnh sửa phương án nhiều lần. Tiếp tục phải thay đổi nhiều đơn vị thiết kế thi công khác, mất nhiều thời gian và tiền bạc.
- Gia chủ chọn một đơn vị thiết kế và một đơn vị thi công riêng, nhưng không tìm được tiếng nói chung trong phong cách. Sản phẩm cuối cùng không có đơn vị chịu trách nhiệm cuối.
- Gia chủ chọn một đơn vị thiết kế và một đơn vị thi công nhưng không triển khai đúng được ý đồ thiết kế do kiết kế cá nhân hóa cao, không đưa ra được phương án thay thế. Kết quả nhà chắp vá hoặc đội ngân sách do chỉnh sửa nhiều lần.
Vậy gia chủ cần làm gì để quản trị thi công – đảm bảo ngôi nhà sẽ sống trong nhiều năm tới được hoàn thiện trọn vẹn như ý?

Nắm bắt quá trình quản trị và định rõ đơn vị chịu trách nhiệm cuối
Khi lựa chọn hai đơn vị thiết kế và thi công độc lập, điều đầu tiên gia chủ cần làm không phải là chọn thêm một bên “giám sát cho yên tâm”, mà là xác lập rõ vai trò quản trị công trình. Ai là người hiểu trọn vẹn ý đồ thiết kế, theo sát quá trình thi công và chịu trách nhiệm đến cùng cho chất lượng không gian khi bàn giao. Nếu câu hỏi này không được trả lời rõ ràng ngay từ đầu, mọi vấn đề phát sinh sau đó đều rất khó quy trách nhiệm.
Gia chủ cần yêu cầu một đơn vị hoặc một cá nhân có năng lực chuyên môn đủ sâu để đứng giữa thiết kế và thi công. Người này không chỉ đọc được bản vẽ, mà phải hiểu logic hình thành không gian, mức độ ưu tiên của từng chi tiết và giới hạn có thể chấp nhận khi thi công thực tế. Trong quá trình xây dựng, mọi điều chỉnh tại công trường đều cần được đối chiếu lại với ý đồ ban đầu, thay vì xử lý theo hướng tiện đâu làm đó.

Song song với việc xác định đầu mối chịu trách nhiệm, gia chủ cần làm rõ phạm vi quyền hạn. Đơn vị quản trị phải có quyền can thiệp khi thi công đi chệch bản vẽ, có tiếng nói trong việc lựa chọn phương án thay thế vật liệu, cấu tạo hoặc chi tiết, và có trách nhiệm đưa ra quyết định khi xảy ra xung đột giữa thiết kế và điều kiện thực tế. Nếu không có quyền hạn đủ rõ, vai trò quản trị chỉ tồn tại trên danh nghĩa.
Một điểm quan trọng khác thường bị bỏ qua là thời điểm tham gia của quản trị thi công. Quản trị không bắt đầu khi công trình gặp vấn đề, mà phải được thiết lập ngay từ giai đoạn chuẩn bị thi công. Việc rà soát bản vẽ, dự đoán xung đột kỹ thuật, đánh giá mức độ khả thi của các chi tiết thiết kế cần được thực hiện trước khi bước vào xây dựng. Điều này giúp giảm đáng kể sai lệch và tránh các chỉnh sửa tốn kém ở giai đoạn hoàn thiện.
Cuối cùng, gia chủ cần hiểu rằng quản trị thi công không nhằm kiểm soát từng người thợ, mà nhằm bảo toàn chất lượng sống của ngôi nhà trong nhiều năm tới. Một công trình được quản trị tốt sẽ ít phải đánh đổi, ít chắp vá và giữ được tinh thần không gian đúng như gia chủ đã kỳ vọng khi bắt đầu làm nhà. Vì vậy, đơn vị thay chủ nhà giữ chức năng kiểm soát cần phải là đơn vị chịu trách nhiệm cuối cùng.



Một câu chuyện quản trị thi công của Mộc Xinh tại công trình căn hộ Vinhomes Green Bay
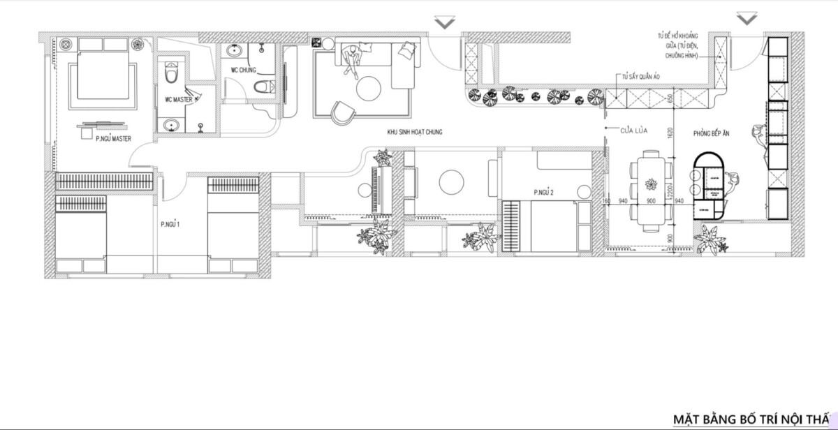
Căn hộ 175m² tại Vinhomes Green Bay bắt đầu từ hai mặt bằng nguyên bản của chủ đầu tư, với hai cửa vào cách xa nhau và hệ vách bê tông – cột chịu lực chia cắt không gian. Gia chủ đã làm việc với một đơn vị trước đó và chốt phương án layout cải tạo, đồng thời triển khai một phần thi công phá dỡ. Khi Mộc Xinh tiếp nhận, công trình đã mở thông hai căn nhưng vẫn giữ nguyên trần thạch cao và các cấu phần cũ; phương án mặt bằng đã tồn tại và thủ tục pháp lý liên quan đến phòng cháy chữa cháy khiến việc thay đổi khung sườn trở nên áp lực về tiến độ và chi phí.


Trong bối cảnh đó, bài toán của Mộc Xinh không dừng ở thiết kế hình thức nội thất theo tinh thần Japandi, mà là quản trị thi công trong điều kiện hai đơn vị song song, khi đơn vị cũ tiếp tục đảm nhiệm phần xây dựng cơ bản, còn Mộc Xinh chịu trách nhiệm hoàn thiện nội thất và chất lượng không gian cuối cùng. Trách nhiệm “đến cùng” đồng nghĩa với việc mọi sai lệch ở phần thô đều có thể ảnh hưởng trực tiếp đến trải nghiệm sau cùng mà gia chủ mong đợi.

Quyết định đầu tiên là đánh giá lại toàn bộ phần thô đã và đang thi công. Mộc Xinh rà soát cao độ, trục giao thông, kích thước thông thủy, vị trí kỹ thuật và những điểm có nguy cơ tạo góc chết khi hoàn thiện. Những chi tiết không phù hợp được tinh chỉnh trong phạm vi cho phép của khung sườn cũ, nhằm bảo toàn tiến độ và tránh phát sinh thủ tục pháp lý. Việc giữ lại “xương sống” của layout trước đó là lựa chọn chiến lược để Mộc Xinh kiểm soát rủi ro và tái tổ chức không gian bằng giải pháp chi tiết.
Khó khăn lớn nhất nằm ở sự lệch pha giữa phong cách thiết kế và năng lực thi công phần thô. Công trình hướng tới ngôn ngữ mềm mại với vòm, đường cong, xử lý bo cạnh và lớp hoàn thiện tinh tế; trong khi đơn vị xây dựng quen với cấu trúc thẳng – phẳng – đơn giản. Nếu không có cơ chế kiểm soát chặt chẽ, các chi tiết vòm thạch cao, tỷ lệ bo cong, điểm chuyển tiếp vật liệu sẽ không được đảm bảo làm giảm chất lượng thẩm mỹ tổng thể.










Mộc Xinh thiết lập quy trình nghiệm thu trung gian cho từng hạng mục trước khi chuyển sang giai đoạn tiếp theo. Mọi chi tiết đặc thù đều có bản vẽ triển khai kỹ thuật kèm hướng dẫn cụ thể; tại công trường, đội ngũ phụ trách phải kiểm tra thực tế và yêu cầu chỉnh sửa khi cần thiết trước khi cho phép hoàn thiện. Với những phần thô đơn vị cũ không đảm bảo được, Mộc Xinh đưa đội ngũ thi công thô của mình để chỉnh sửa hoàn thiện, làm cơ sở tốt nhất cho giai đoạn thi công nội thất.
Đặc biệt, hành lang liên thông, yếu tố then chốt kết nối phòng khách và bếp được xử lý như một “trục không gian” với tiểu cảnh vườn khô là điểm nhấn tạo bản sắc cho toàn bộ căn hộ. Việc đảm bảo cao độ sàn, hệ chiếu sáng, vị trí kỹ thuật và lớp hoàn thiện đồng bộ đòi hỏi sự phối hợp liên tục giữa hai đơn vị nhằm giữ cho trục giao thông này đạt đúng tinh thần ban đầu.
Cuối cùng, nhờ việc bám sát thi công thô và phản ứng nhanh để tinh chỉnh kịp thời, căn hộ đập thông thoát khỏi tình trạng chắp vá giữa hai cách làm khác nhau và đạt được sự thống nhất về trải nghiệm: một không gian nghỉ dưỡng tại gia, mạch lạc trong giao thông và liền mạch trong cảm xúc.

Câu chuyện tại Vinhomes Green Bay cho thấy: quản trị thi công không phải lớp phụ trợ phía sau thiết kế, mà là nền tảng bảo đảm cho ý đồ không gian được thực thi trọn vẹn. Với những công trình có nhiều bên tham gia, vai trò này càng trở nên quyết định đối với chất lượng sống dài hạn của gia chủ.
Nếu bạn đang chuẩn bị triển khai một dự án cải tạo và mong muốn công trình được kiểm soát chất lượng từ bản vẽ đến hoàn thiện, đội ngũ của Mộc Xinh Designs sẵn sàng đồng hành cùng bạn trong toàn bộ quá trình.
